Planning Board Hears Pitch to Replace Single Family Home with 41 Apartments

Image

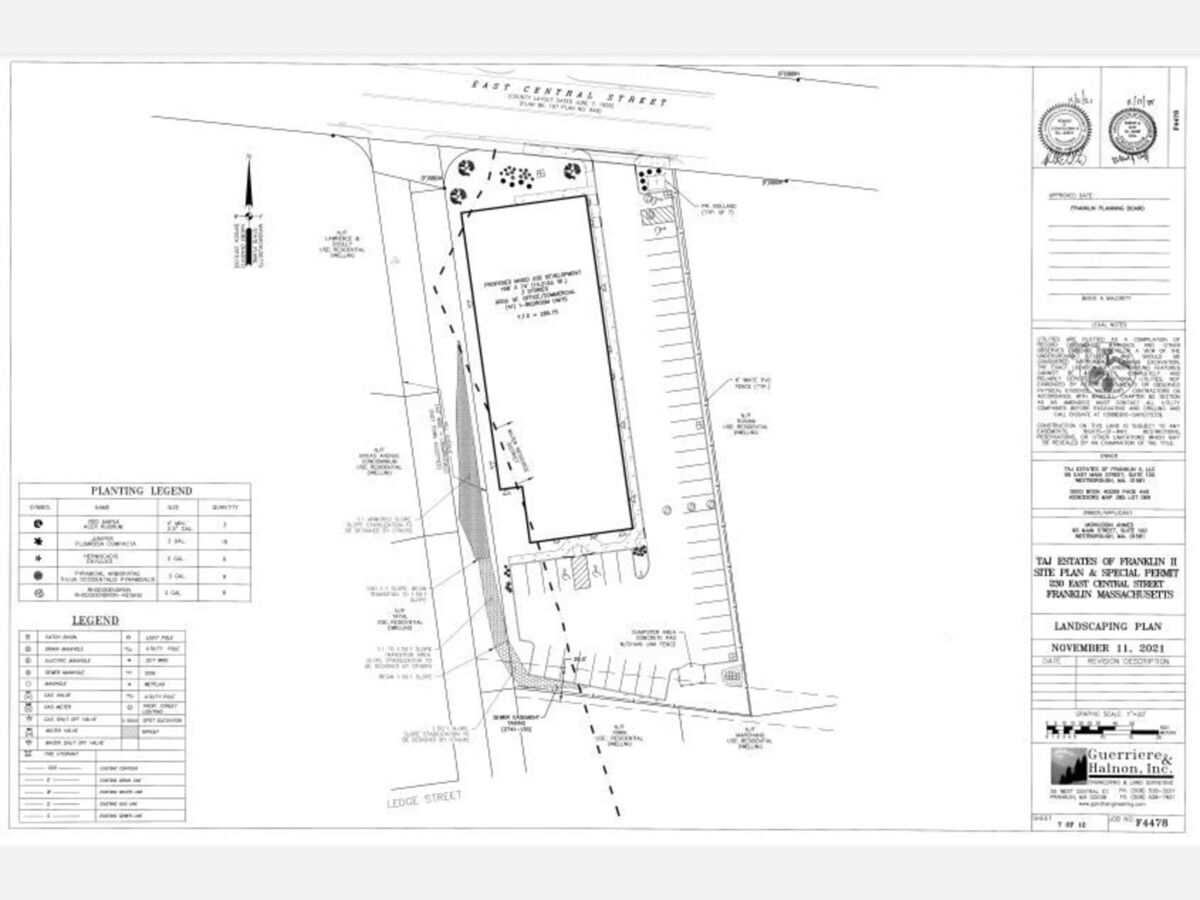
The Planning Board conducted its initial public hearing for the Taj Estates project proposed for 230 East Central Street on Monday evening. This property, which was purchased a few days before the election by the applicant, is presently occupied by a single-family home. To be discussed were a special permit and the site plan.

Representing the developer was attorney Richard Cornetta who explained that the property in question is about one acre located on the southerly side of the East Central Street. It's located wholly within the commercial one zoning district. And it's also located within the water resource district as well. The plans are to remove the existing structure and replace it with a three-story,14,000 square foot commercial mixed-use residential building, which will contain 41 single bedroom apartment style residential units with 900 square feet of commercial space that is located on the front or front portion, first floor of the of the building.

“In order to do this, of course, we need to seek certain approvals from the town and this board particularly we would be seeking a special permit in order to allow multifamily apartment style housing in the commercial one zoning district,” noted Cornetta. He said there were no wetland issues with the site.

Cornetta went on to say that the property aligned well with transit-oriented legislation developed by the Baker administration and that it is only a half-mile from the train station and will be targeted at people who primarily commute to the city.

Cornetta noted that it could be a desirable location for singles, young couples, empty nesters, and even seniors and he said the projected rental rate of $1,800-2,000 per month would make it affordable by the standards of Greater Boston.

The board and members of the town staff had many comments and questions. In particular, Planning Board Member Jennifer Williams took issue with the affordability claim and noted that the distance to the head of the stairs leading to the train station was six-tenths of a mile, and by car, to the parking lot, nearly seven-tenths, clearly excluding the project from classification as transit oriented. Furthermore, the legislation cited was not yet applicable to Franklin, she noted.

Other comments raised had to do with adequacy of drainage, where overflow parking would go and lack of adequate plantings. An abutter also suggested that the parking proposed near the back of the lot would likely require blasting which could affect his property, which has an old-style stone foundation. Another abutter has run a daycare for many years and is concerned about traffic, noise, etc.

The board also requested a traffic study and color renderings showing what the proposed project would look like. The Historical Commission also needs to review the request to demolish the building which may date to the 19th century.

The project was continued to a future meeting.

Among the other issues tackled by the Planning Board Monday:

  • Olam Estates – 900 Washington St., a Definitive Subdivision. This project has been before the board several times as it has evolved. A number of changes have been incorporated in the plans including a different approach to a retention pond and wider roadways. A review is pending with the Conservation Commission. The Planning board still sought clarification on several things including a tentative plan for the future site buildout. The matter was continued.
  • A site plan for 5 Fisher Street was discussed. Specifically, further evolution of the design, in consultation with the town engineer, touched on location and types of swales and fencing, and handling drainage, particularly to the rear of the site. An abutter expressed concerns about the project and said she had not been informed about it or the hearing. Rick Kaplan, a co-owner recited the various legal notifications made to abutters and presentations made to the town over the last couple of years and also noted his own effort to go door-to-door. He stressed his willingness to meet with anyone but also noted that the property was zoned industrial and operated three shifts up to a few years ago. “What we are proposing is an improvement for the neighbors,” he said.
  • A site plan modification for 120 Constitution Blvd – the applicant asked for and was granted a continuance.
  • Field Change: Amego – Washington St. The applicant sought to substitute earth with a culvert instead of a small bridge structure on the property. The Board agreed but suggested a 12-inch concrete pipe rather than 8-inch PVC to reduce the possibility of clogging. The Board also suggested a railing for safety.
  • Bond Reduction: Countryside Estates. The applicant requested and was granted a reduction in bond for the town.
  • Lot Release: Cranberry Woods. Planner Amy Love explained that the property in question, apparently along with others in the subdivision, was never released from the subdivision covenant of the construction phase. “I don’t know what went on back in 1992,” she remarked in frustration. The board did agree to the lot release.
  • Endorsement: 15 Freedom Way. This was a matter that had come before the Board previously and had been approved but needed to be added to the written plans. That was accomplished so the Board voted to endorse the plans.

Below, plans for new structure  at 230 East Central

I'm interested
I disagree with this
This is unverified
Spam
Offensive